
객실

객실
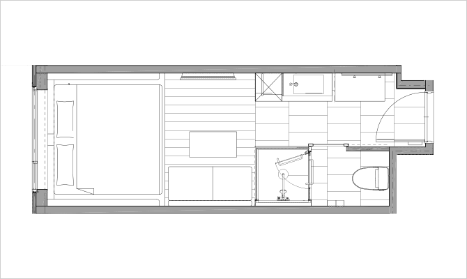
창가에 폭 195cm의 빅 사이즈 침대를 배치하고, 앞에는 느긋한 소파 & 테이블을 설치하고 있습니다.
방에 면한 프로스트 유리의 샤워 룸은 행등과 같이 빛나고, 부드러운 빛 속에서 천천히 편히 쉬실 수 있습니다.
또, 지하의 방에는 격자무늬의 타일 벽과 식재가 라이트 업 된 넓은 평정을 배치해, 일본적인 정서 속에 지하의 메리트를 살린 조용한 방에서 천천히 편히 쉴 수 있습니다.
Android TV(YouTube 마음껏)/Bluetooth 스피커/고속 인터넷 무료(Wi-Fi)/냉장고/전기 주전자/전화기/금고/드라이어/워슈렛트 첨부 화장실
휠체어/바지 프레서/공기 청정기/가습기/다리미/다리미판/헤어 다리미(스트레이트 & 컬)/충전용 변환 플러그/충전기(iPhone용, 타입 B·C)/재봉 세트/손톱깎이/바게지 랙/데스크라이트/식기류/와인 오프너/마개 빼기/아이스페르/블랭킷/추가
체크인 ... 15:00 / 체크 아웃 ... 12:00
VISA/JCB/ Mastercard /AMEX/UC/DC/NICOS/ Diners Club / UnionPay을 이용하실 수 있습니다. 기타 카드는 호텔로 문의하시기 바랍니다.
당 호텔의 숙박 약관에 근거해 숙박 기본 요금으로부터 전일 20%, 당일 80%, 불박 100%의 캔슬 요금을 받습니다.단, 플랜에 의해 캔슬 규정이 다른 경우가 있습니다.
구내 어디서나 편안한 Wi-Fi 서비스를 무료로 이용하실 수 있습니다.
TV 화면에서 유튜브 마음껏 이용하실수 있습니다. 스마트폰과의 캐스트(미러링)도 가능.
라운지에 커피 머신을 설치하고 있습니다.
객실에 한 분당 1 개 준비하고 있습니다.
베개에 콘센트를 갖추고 있습니다.
스킨 케어 아이템이나 헤어 오일, 홍차등의 아이템이 충실합니다.
미취학의 어린이에게 건네주고 있습니다.
공기 청정기・가습기・다리미 등 무료로 이용하실 수 있습니다.
1F 라운지 앞에 설치하고 있습니다. 취급 통화 목록을 본다.
B1F에 유료 동전 세탁이 있습니다.
신칸센 첨부 숙박 플랜은 타임 디자인이 안내합니다.
숙박+신칸센에 관한 문의, 예약의 변경・캔슬등은 주식회사 타임 디자인에 연락을 부탁드리겠습니다.
주식회사 타임 디자인
TEL.0570-039866(영업 시간:월~금 10:00-17:00 ※토, 일, 공휴일은 휴업)