객실

객실

현재 보고 있는 페이지
GRANBELL HOTEL OTARU TOP > 객실 > 유니버설

유니버설

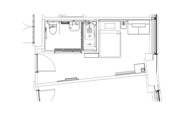
2-3층에 위치한 장애인용 객실입니다. 실내의 단차를 없애고, 고령의 분이나 휠체어를 이용의 손님도 쾌적하게 보내실 수 있습니다. 욕실·화장실에는 난간을 갖추고, 누구나 안심하고 이용하실 수 있는 유니버설 디자인의 방입니다. 침대 아래 공간에 가방 등의 수납도 가능합니다.

기본 정보
넓이 21㎡
침대 폭 110cm×1대+소파 베드
정원 2名
비고 모든 객실 금연

레이아웃 다이어그램

확대 레이아웃 다이어그램

이 객실 예약

모든 객실 공통 시설

TV(인터넷 이용 가능)/고속 인터넷 무료(Wi-Fi)/냉장고/전기 주전자/전화기/금고/드라이어/행거/베개 전 콘센트/워슈렛트 첨부 화장실/드림 침대 사제 침대 “Serta”/AI 스마트 스피커/개별 에어컨

어메니티

목욕 수건/칫솔/샴푸/컨디셔너/몸 비누/헤어 브러쉬/면도/면도 크림/슬리퍼/나이트웨어/어린이용 어메니티(칫솔, 슬리퍼, 잠옷)

※나이트 웨어는 3 사이즈를 준비하고 있습니다.
(L:125cm, S:120cm, 어린이용:84cm)
규격 사이즈이기 때문에, 약간의 오차는 있습니다.

대출 비품(무료)
※수량 한정

휠체어/바지 프레스/공기 청정기/가습기/다리미/헤어 다리미(스트레이트&컬)/충전기

체크인 체크아웃

체크인 ... 15:00 / 체크 아웃 ... 11:00

신용카드

VISA/JCB/ Mastercard /AMEX/UC/DC/NICOS/ Diners Club / UnionPay을 이용하실 수 있습니다. 기타 카드는 호텔로 문의하시기 바랍니다.

취소

당 호텔의 숙박 약관에 근거해 숙박 기본 요금으로부터 전일 20%, 당일 80%, 불박 100%의 캔슬 요금을 받습니다.단, 플랜에 의해 캔슬 규정이 다른 경우가 있습니다.

설비·서비스

객실 일람

페이지 맨 위로

+81-134-64-7573